The logo of AMIGOS DESIGN featuring a metallic stylized letter 'A' and the business name in white text on a dark blue gradient background.

Our Services

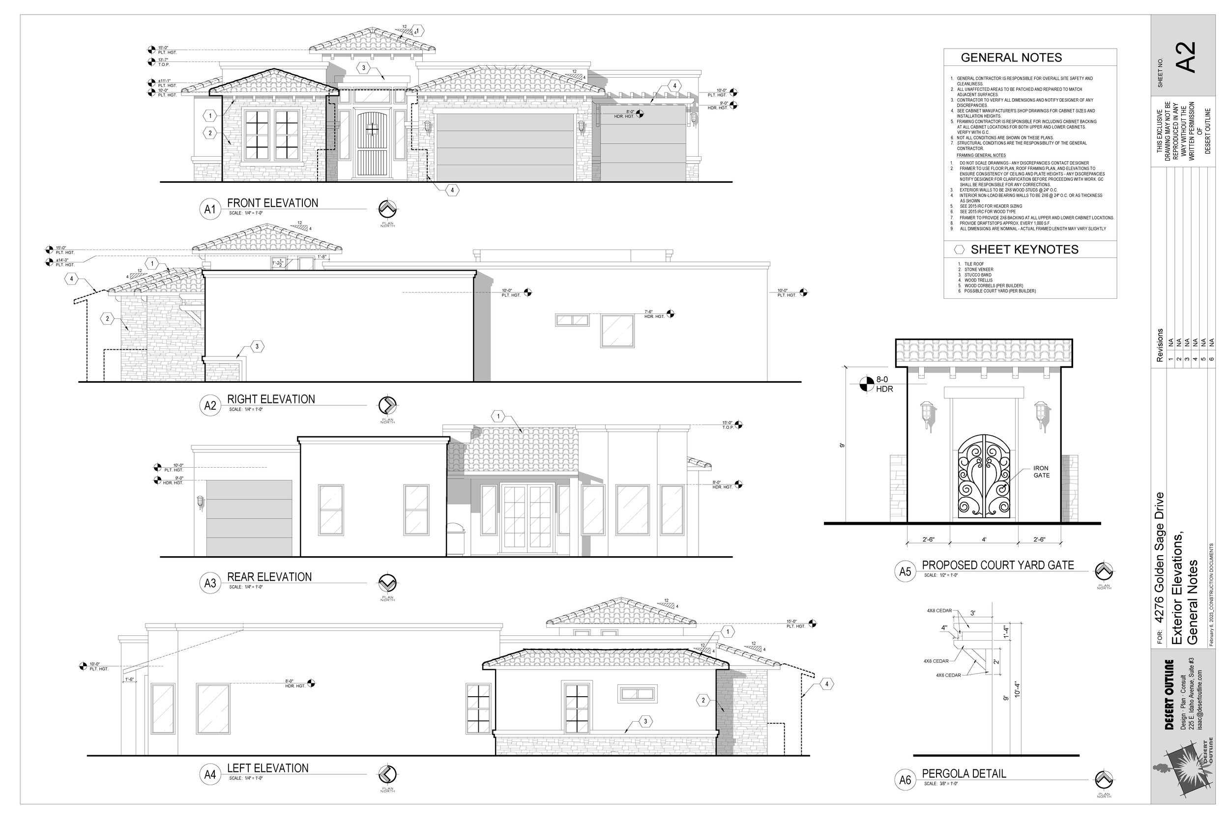
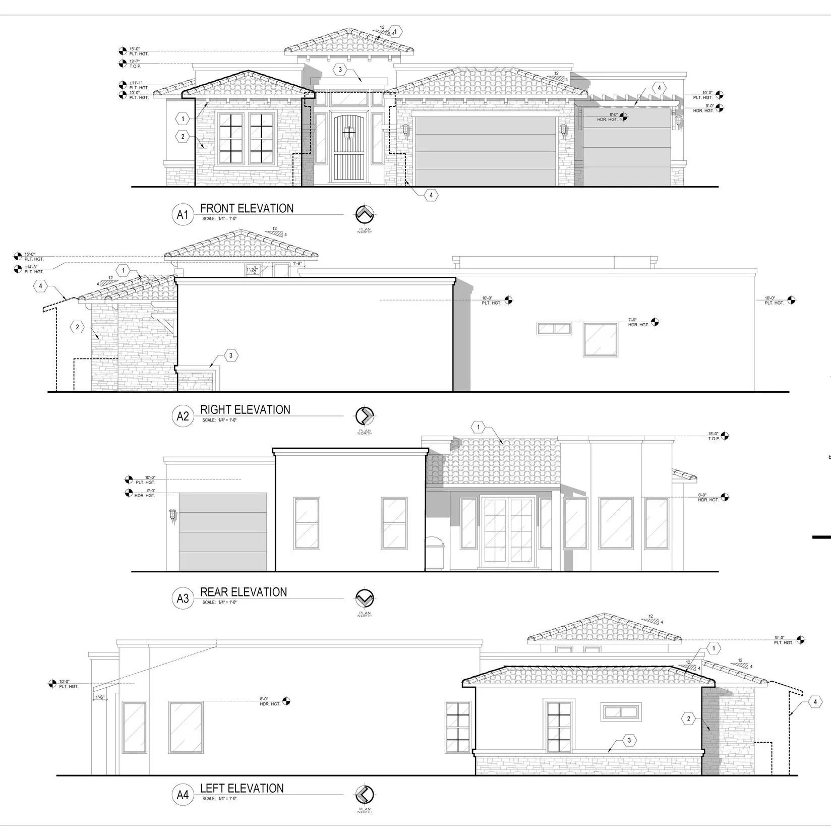
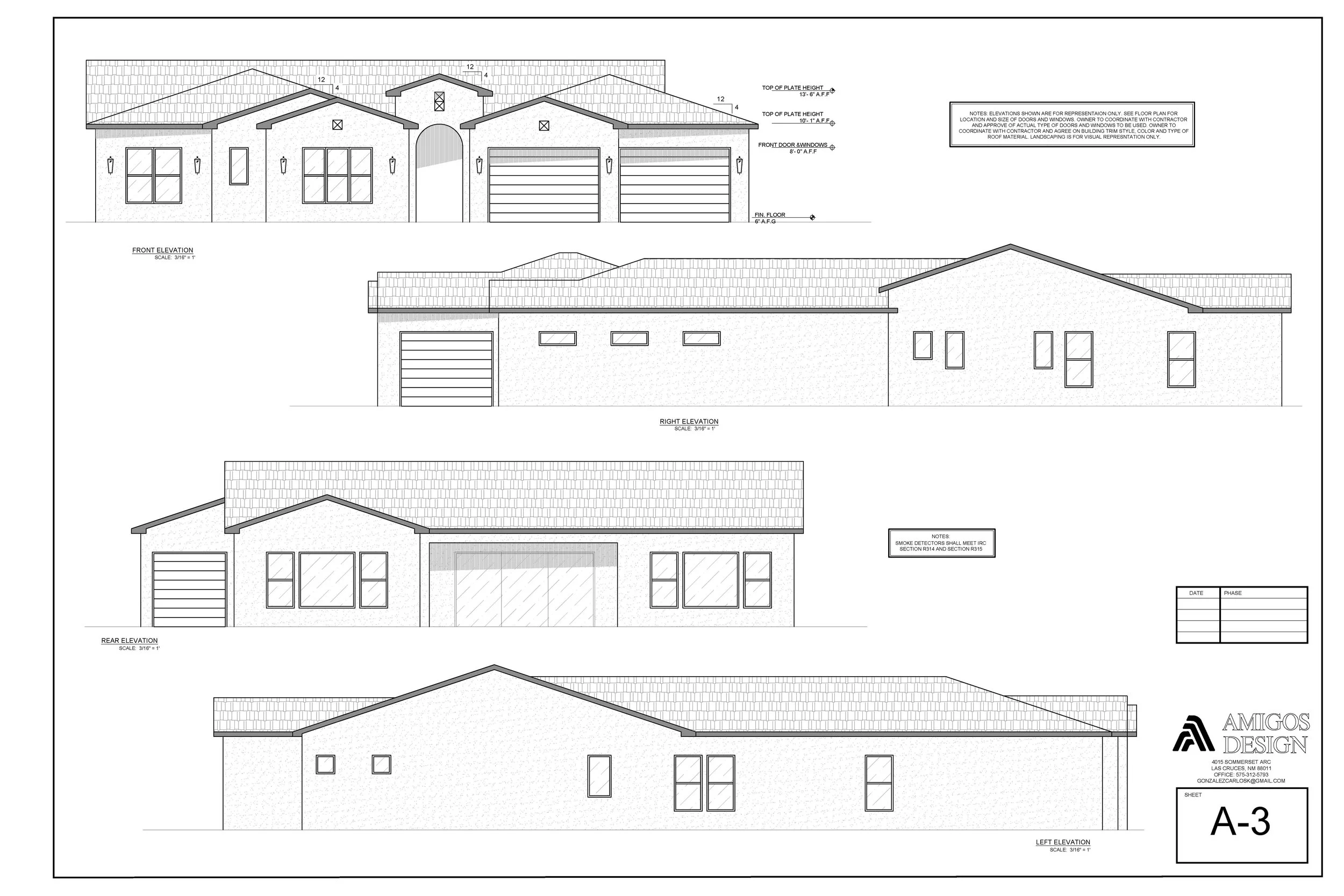
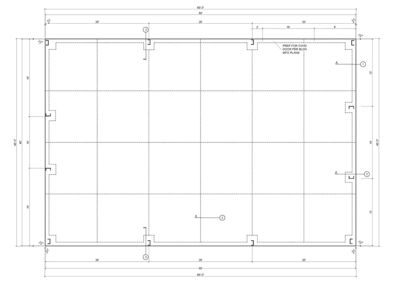
We provide professional drafting and permit-ready construction plans for residential and light commercial projects throughout Las Cruces, Doña Ana County, and Southern New Mexico. All drawings are prepared using AutoCAD and tailored to meet local zoning, setback, and building department requirements.

  1. House Plans

  2. Carports & Metal Buildings

  3. Home Additions & Remodels

  4. Mueller Pre-Manufactured Foundation Plans

  5. Grading and Drainage Plans

  6. Civil Drafting & AutoCAD Services

  7. Retaining Wall designs.

  8. SWPPPs

Services

Filters

No results found

No results match your search. Try removing a few filters.

Contact us

Interested in working together? Fill out some info and we will be in touch shortly. We can’t wait to hear from you!